TEA WELL is a chain urban oriental style tea drink brand, and this is the third store we have completed for it.
Chain brands are easy to get confused in the early growth stage. Not only worry about the invariable store image will make the brand lose its charm, but also worry that the drifting style will make it difficult to keep a deep impression to the public. It is an interesting topic to change and not to change...
For TEA WELL, we believe that its core value cannot be changed, and the "Urban Sense" and "Oriental Sense" are the key. It is the gene of the brand, responsible for connecting consumer groups with common values. "Urban Sense" is the respect and understanding of the lifestyle of local consumer groups, while "Oriental Sense" is an important identification factor for the brand to go global. Therefore, we kept restraint on the consistency of the space tone, but incorporated many innovations in experience and details in the new store.
This project is located in a street shop of Sungang MixC Market Hall. Designing in a shopping mall is like formatting a composition, which will be subject to many restrictions from the site and management: The shopping mall has established modern glass curtain walls , and strict and unified facade management. We need to find another way to create a unique facade design in the prescribed content format, while both cost and efficiency.Different from other brands, set their brand logo in the designated area obediently, we gave up these areas after comprehensive consideration. Therefore, a huge light box that "grows out" from the ground becomes the most visually recognizable facade on the street. The surface of the light box is made of a huge custom-made semi-permeable cotton linen fabric, and the inside is a layer of diffused flexible film. The double-layer film structure presents a jelly-like texture.
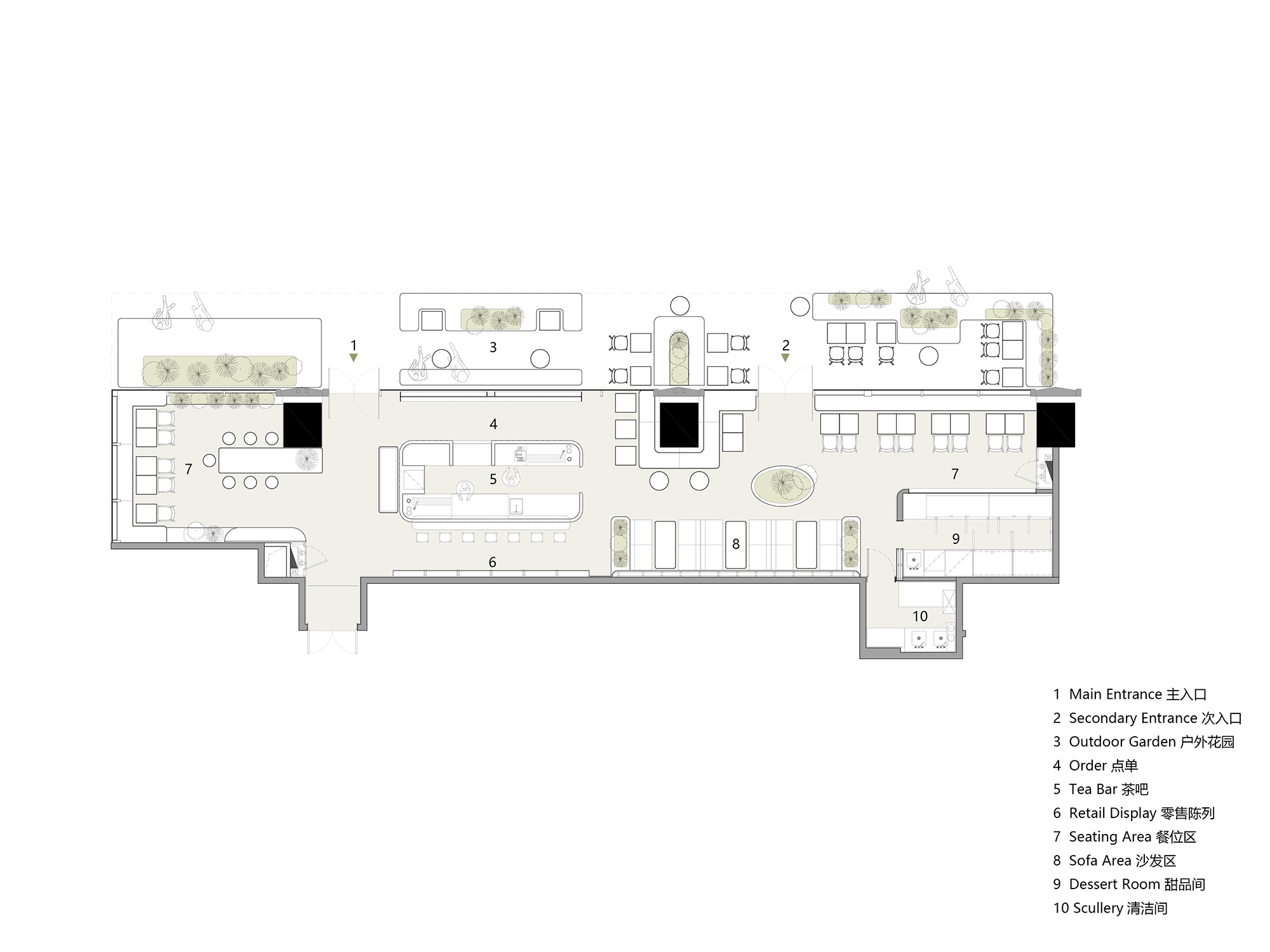
The shop is 30 meters long, and its long external display is an advantage, but it is easy to cause the traffic flow to be too long. We set the bar as the hub of the space, which greatly shortens the distance between flow at both ends. It is not only a place of ordering, making and display, but also an important area for the brand to interact with customers.
The new store has a concept of "Tea & Market ". and we have redesigned the retail area. Through design with oriental aesthetics, the products are looming behind the linen curtains, that weakens the retail sense of the area, improves the aesthetic of those displays , and makes them a part of the dining environment; Avoiding centralized display tends to create a cheap feeling like a supermarket, we distribute the products scattered in areas where customers tend to stay for a long time; The barrier-free and open design also prevents them from becoming "no-touch" vases in the art galleries, shortens the distance between customers and them, and have more connections and interactions.
There are two big trees in front of TEA WELL, one is a cypress, and the other is also. They originally belonged to the public area of the mall, but we feel they belong to the store. Inspired by it, we made the outer area as an urban living room. They are no longer enclosed private gardens, but an outward friendly neighborhood design. People can relax in the flowers and plants, enjoying the shade under the trees and the scenery of the square, and feel the affinity of the brand in all moment.
In the process of chain brand duplication, it is difficult to make subversive innovations from integers such as 0 to 1 every time, it is also unnecessary. We think opportunities should be hidden in decimal points like 0.1 and 0.2. In this design, we always focus on the feeling of people in the space, handle every key point of connection with customers, and improve the detailed experience. In this case, small innovation may be more meaningful than overthrowing.
Location: MixC Sungang, Shenzhen
Type: Teahouse
Area: 200㎡
Year: 2022





















