This is the second store we have completed for MERCI LEE.
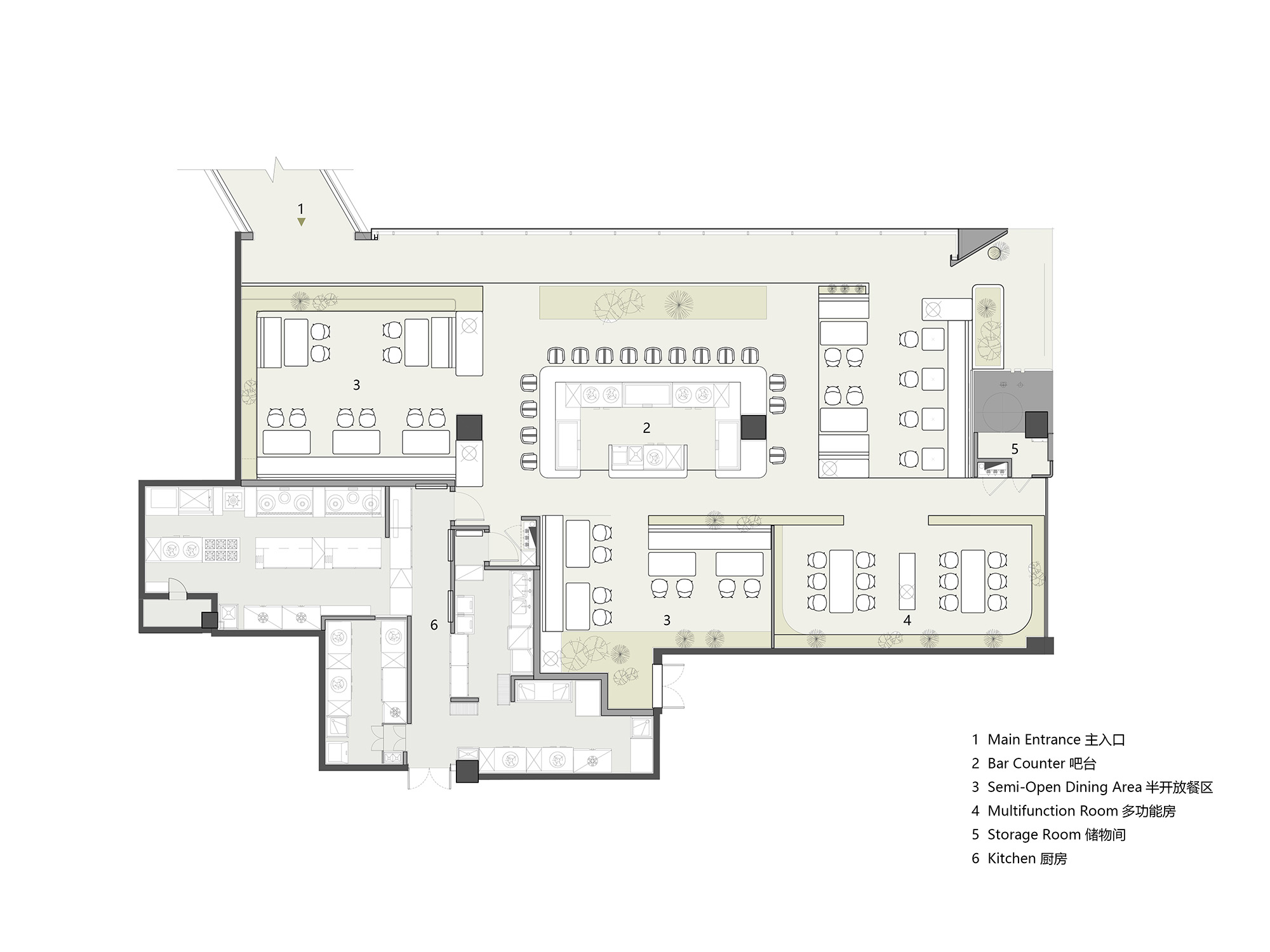
MERCI LEE specializes in Sichuan-style teppanyaki cuisine. Our client gave us a very simple task from the beginning: to design a comfortable and social dining place: After sorting out the key information of the brand, we were pleasantly surprised to find that their product presentation coincides with our space design concept. They presents traditional Chinese flavors through modern cooking techniques, and we also hope to follow this principle in our work: a modern expression of traditional oriental aesthetics...
Location: Titian Holiday Plaza, Shenzhen
Type: Restaurant
Area: 375㎡
Year: 2022


















